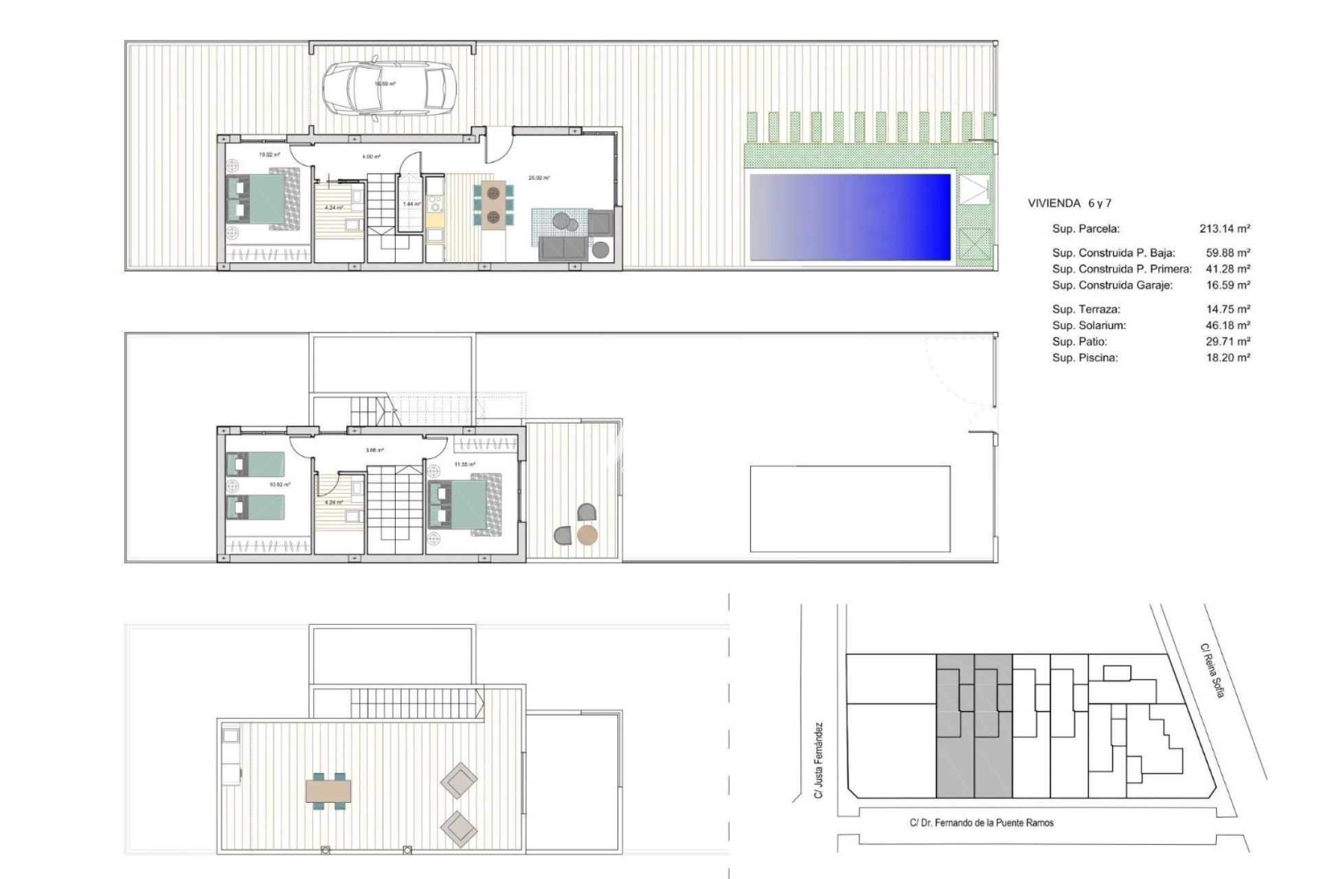
In der charmanten Stadt Los Alcázares gelegen, bietet diese exklusive Sammlung von 9 unabhängigen Häusern eine privilegierte Umgebung für diejenigen, die ein Zuhause an der Küste suchen. Mit einer Entfernung von nur 1 km zum Meer sind diese Immobilien ideal, um die Meeresbrise und den mediterranen Lebensstil zu genießen. Darüber hinaus befindet sich der Flughafen nur 30 km entfernt, was den Zugang zu internationalen Verbindungen erleichtert. Die Häuser sind so gestaltet, dass sie Komfort und Funktionalität bieten, mit einer Aufteilung, die 3 Schlafzimmer und 2 Bäder umfasst und sich an die Bedürfnisse von Familien und Paaren anpasst, die einen gemütlichen und modernen Raum suchen.
AUSSENBEREICHE
Die Außenbereiche dieser unabhängigen Häuser sind darauf ausgelegt, das sonnige Klima von Los Alcázares optimal zu nutzen. Jede Immobilie verfügt über einen privaten Garten, ideal, um eine persönliche Oase im Freien zu schaffen. Die Terrasse bietet zusätzlichen Raum zum Entspannen oder zur Unterhaltung von Gästen, während das Solarium ideal ist, um in Privatsphäre Sonne zu tanken. Darüber hinaus verfügt jedes Haus über einen privaten Pool, der an heißen Sommertagen einen erfrischenden Ort bietet. Die Nähe zum Meer ermöglicht es, Panoramablicke zu genießen und schnellen Zugang zu den örtlichen Stränden zu haben.
INNENBEREICHE
Das Innere dieser unabhängigen Häuser in Los Alcázares ist mit Liebe zum Detail und Funktionalität gestaltet. Die Böden aus Feinsteinzeug verleihen Eleganz und sind pflegeleicht. Die Küche ist mit modernen Geräten ausgestattet, was den Alltag erleichtert. Einbauschränke in den Schlafzimmern bieten viel Stauraum und sorgen für Ordnung und Organisation. Darüber hinaus verfügen die Häuser über eine Vorinstallation für Klimaanlagen, die das ganze Jahr über Komfort bieten. Die Aufteilung mit 3 Schlafzimmern und 2 Bädern ist darauf ausgelegt, einen gemütlichen und praktischen Raum für die ganze Familie zu bieten.
LOS ALCÁZARES
Los Alcázares an der Costa Cálida ist bekannt für seine weitläufigen Strände mit ruhigem Wasser und seine entspannte Atmosphäre. Dieses Reiseziel bietet eine Vielzahl von Wasser- und Sportaktivitäten und ist damit ein idealer Ort für Liebhaber von Meer und Wassersport. Der Tourismus in Los Alcázares konzentriert sich auf seine Strände, wie die Playa de Los Narejos, ideal für Familien und Wassersportarten wie Windsurfen und Kitesurfen. Darüber hinaus ist die Promenade ein Treffpunkt, um die lokale Gastronomie und die Küstenatmosphäre zu genießen. Der Lebensstil in Los Alcazares ist ruhig und auf das Meer ausgerichtet. Einwohner und Besucher genießen einen entspannten Lebensstil mit einem breiten gastronomischen Angebot, in dem Meeresfrüchte und mediterrane Küche im Vordergrund stehen. Die Gemeinde schätzt die Nähe zum Meer und das Leben im Freien, was Los Alcázares zu einem attraktiven Ziel für alle macht, die ein ruhiges Leben an der Küste suchen.
Die hier zur Verfügung gestellten Informationen sind vorbehaltlich von Irrtümern und sind nicht Bestandteil eines Vertrages. Das Angebot kann ohne Vorankündigung geändert oder zurückgezogen werden. Die Preise enthalten keine Anschaffungskosten.
Mehr sehen
Mehr sehen
Mehr sehen
Mehr sehen
Mehr sehen
Mehr sehen
Mehr sehen
© AV CABO ROIG - CASAVIMAR SL · Rechtlicher Hinweis · Privatsphäre · Cookies · Web-Karte · Entwurf & CRM: Mediaelx
Zunächst einmal, vielen Dank für Ihre Kontaktaufnahme.
Mehr sehen
Mehr sehen
Mehr sehen
Mehr sehen
Mehr sehen
Mehr sehen
Mehr sehen
Zunächst einmal, vielen Dank für Ihre Kontaktaufnahme.
Wir haben Ihre Anfrage erhalten, wenn der Preis, der Immobilie mit der Referenz gesenkt wird: NB-83757
In der Zwischenzeit sehen Sie sich bitte diese Auswahl ähnlicher Objekte an, die für Sie von Interesse sein könnten:
Mehr sehen
Mehr sehen
Mehr sehen
Mehr sehen
Mehr sehen
Mehr sehen
Mehr sehen