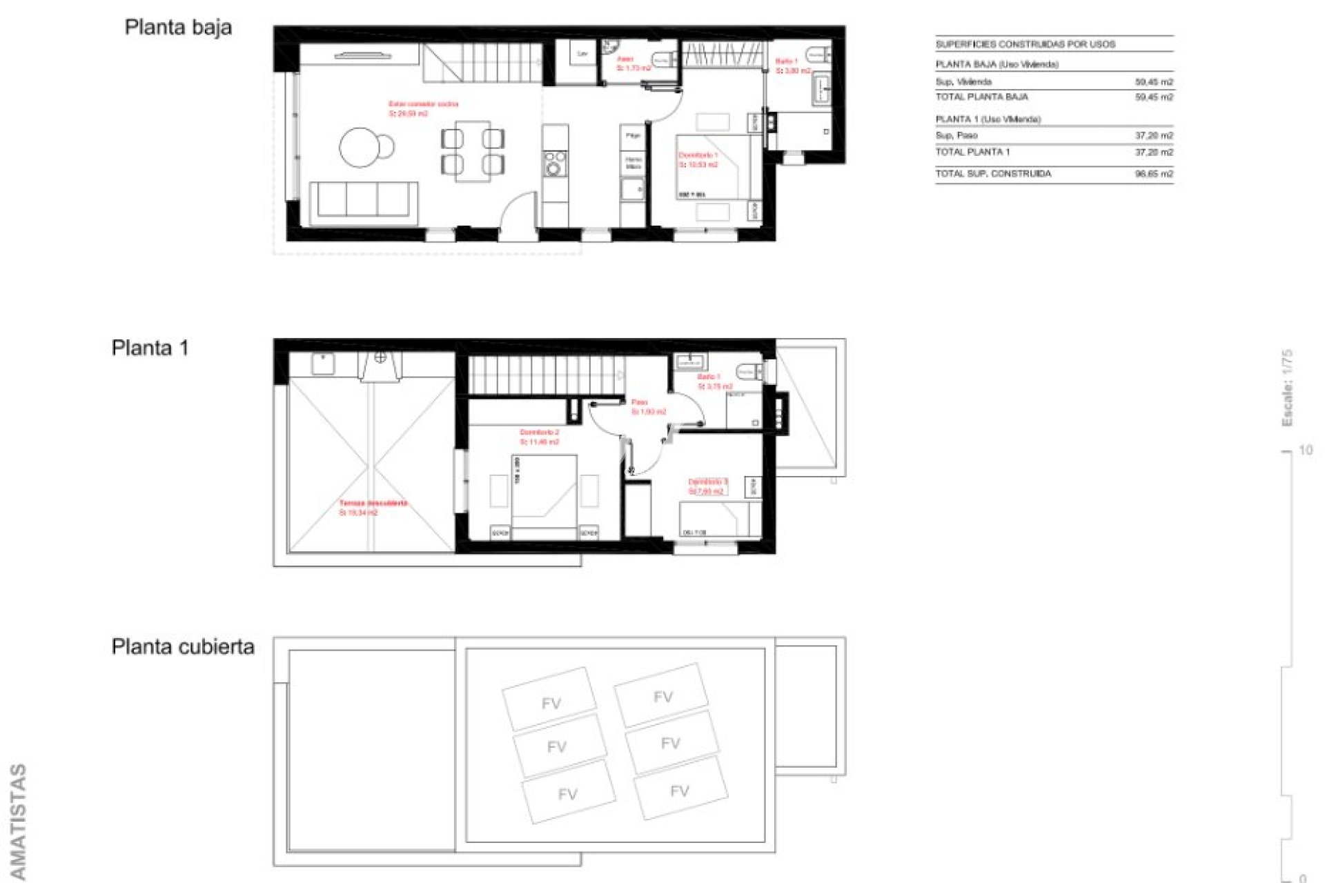
Ubicada en el encantador entorno de Daya Nueva, esta exclusiva colección de 19 viviendas independientes ofrece un estilo de vida sereno y cómodo. Cada propiedad está diseñada para maximizar el confort y la funcionalidad, con una distribución que incluye tres dormitorios y dos baños. La ubicación es ideal para quienes buscan un equilibrio entre la tranquilidad de un entorno residencial y la proximidad a servicios esenciales. A solo 10,896 km del aeropuerto, estas viviendas son perfectas para quienes valoran la accesibilidad y la comodidad en sus desplazamientos. La tipología de las viviendas es "Independiente", lo que garantiza privacidad y espacio personal.
EXTERIORES
Los exteriores de estas viviendas en Daya Nueva están diseñados para ofrecer un entorno acogedor y funcional. Cada propiedad cuenta con una terraza, ideal para disfrutar del clima mediterráneo y crear un espacio al aire libre personalizado. Las viviendas están rodeadas de áreas ajardinadas que no solo embellecen el entorno, sino que también proporcionan un espacio adicional para el ocio y la relajación. La presencia de una piscina comunitaria añade un toque de lujo, permitiendo a los residentes disfrutar de un refrescante baño sin salir de su comunidad. Además, un parque infantil está disponible, lo que hace que estas viviendas sean una opción atractiva para familias con niños.
INTERIORES
El interior de estas viviendas independientes en Daya Nueva está cuidadosamente diseñado para ofrecer confort y estilo. Los suelos de gres porcelánico aportan un toque moderno y son fáciles de mantener, lo que es ideal para un estilo de vida activo. Los armarios empotrados en los dormitorios proporcionan un almacenamiento eficiente, ayudando a mantener los espacios ordenados y libres de desorden. Con tres dormitorios y dos baños, estas viviendas están preparadas para satisfacer las necesidades de familias o parejas que buscan un hogar espacioso y bien distribuido. La inclusión de una terraza permite una transición fluida entre los espacios interiores y exteriores, ampliando las posibilidades de uso del hogar.
ZONAS COMUNES
Las zonas comunes de este residencial en Daya Nueva están diseñadas para fomentar un sentido de comunidad y proporcionar espacios de ocio para todos los residentes. Las áreas ajardinadas ofrecen un entorno verde y relajante, perfecto para paseos tranquilos o actividades al aire libre. La piscina comunitaria es un punto de encuentro ideal para socializar y disfrutar del buen tiempo. Además, el parque infantil asegura que los más pequeños tengan un lugar seguro y divertido donde jugar. Estas instalaciones hacen que el residencial sea una opción atractiva para familias y personas que valoran un estilo de vida activo y social.
DAYA NUEVA
Daya Nueva, en la provincia de Alicante, es un enclave tranquilo que resalta por su ambiente rural y su proximidad a la costa. Aunque no sea un destino turístico masivo, su encanto radica en su autenticidad y serenidad. El turismo en Daya Nueva se centra en su entorno rural y su conexión con la naturaleza, propicio para caminatas y actividades al aire libre. Además, su cercanía a las playas de la Costa Blanca agrega valor a su oferta. El estilo de vida en Daya Nueva es apacible y arraigado en la vida rural. Los residentes disfrutan de la tranquilidad y la convivencia comunitaria, valorando la conexión con la tierra y las tradiciones locales. La gastronomía se basa en platos tradicionales de la región, con productos frescos y sabores auténticos. Daya Nueva ofrece un ambiente sereno y auténtico para aquellos que buscan una vida tranquila en un entorno rural cercano a la costa.